Salta i ves al contingut principal

Configuració de les galetes

Fem servir galetes per assegurar les funcionalitats bàsiques del lloc web i per a millorar la teva experiència en línia. Pots configurar i acceptar l'ús de galetes, i modificar les teves opcions de consentiment en qualsevol moment.

Essencials

Preferències

Analítiques i estadístiques

Màrqueting

Taller participatiu Cases del carrer del Pont

Març
11
2019
  • Societat Cultural i Esportiva La Lira
    Carrer de Coroleu, 15, Barcelona
  • 17:00 PM - 19:00 PM CET
OpenStreetMap - Carrer de Coroleu, 15, Barcelona

Avatar: Trobada oficial Trobada oficial

Les Cases del carrer del Pont, un nou equipament per Sant Andreu

Objectius:

  • Explicació de l'espai: història, característiques de les cases, estat de conservació, etc.

  • Contextualització del Pla Director del Rec Comtal i les restes conservades al Districte de Sant Andreu.

  • Diagnosi per part de les entitats dels serveis que hauria d'oferir el nou equipament, en relació amb els altres equipaments culturals existents.

La sessió es completarà amb un qüestionari als assistents sobre diferents aspectes dels usos i activitats del nou centre, que ens servirà per orientar el segon taller.


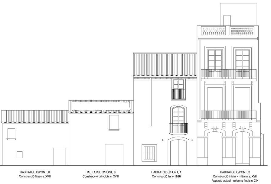
Presentació tècnica sobre l'estat i les característiques de les cases
Document descriptiu de l'estat de les cases i les característiques del conjunt
Descarregar fitxer
Pla Director del Rec Comtal
Document sobre el Pla Director del Rec i els trams i punts d'intervenció al Districte de Sant Andreu
Descarregar fitxer

Acta de la trobada

En aquesta sessió es van explicar les característiques de les Cases del Carrer del Pont, així com el projecte de rehabilitació parcial de les cases 6 i 8, les més antigues, de major valor patrimonial i en pitjor estat de conservació. Aquesta primera rehabilitació, que es finalitzarà el primer semestre de 2020, permetrà obrir una sala d’exposicions en aquestes dues cases i adequar part del jardí posterior.

La gerent del districte, Carme Turégano, va contextualitzar la voluntat de construir un Centre d’Interpretació del Rec Comtal en el marc del Pla Director del Rec Comtal que s’està treballant a nivell de ciutat, i que inclou 8 punts d’intervenció al Districte: Via de Barcino, Plaça de la Modernitat, Molí de Sant Andreu, Església de Sant Andreu-Cases del carrer del Pont, Rambla Onze de Setembre, Torre de La Sagrera, Nau Ivanow i Jardins de Pepa Colomer.

El conjunt de les Cases del Pont, que inclou les cases i el jardí posterior avui tancat, suma una superfície de més de 800m2 qualificat com a equipament. L’objectiu del Districte és que el Pla funcional d’aquest equipament es basi en les propostes de les entitats i el veïnat de Sant Andreu.

En aquesta primera sessió les entitats i veïns i veïnes participants van començar a fer les seves propostes en relació al futur equipament, tant en relació a la conservació dels edificis com a la necessitat de connectar l’espai amb l’entorn a través de la recuperació del jardí. Amb relació a la futura dinamització de l’equipament, es van fer diverses propostes per vincular l’espai als altres equipaments existents relacionats amb la història i la memòria. I fer-ho amb l’objectiu de convertir les Cases del carrer del Pont en un espai viu i obert a les entitats, a les escoles, i al veïnat.

Confirmar

Si us plau, inicia la sessió

La contrasenya és massa curta.

Compartir